Watch our Auctions Live!
Watch our Auctions Live!

Front Row Position. Unrepeatable Views.

8/160 Kepa Road

2

1

1

2

1

1


share

Marketed by Mike Zelcer

Front Row Position. Unrepeatable Views.


8/160 Kepa Road

Orakei, Auckland

Set Date of Sale (Unless Sold Prior) at 14.05.2026 at 4:00 PM

Marketed by Mike Zelcer

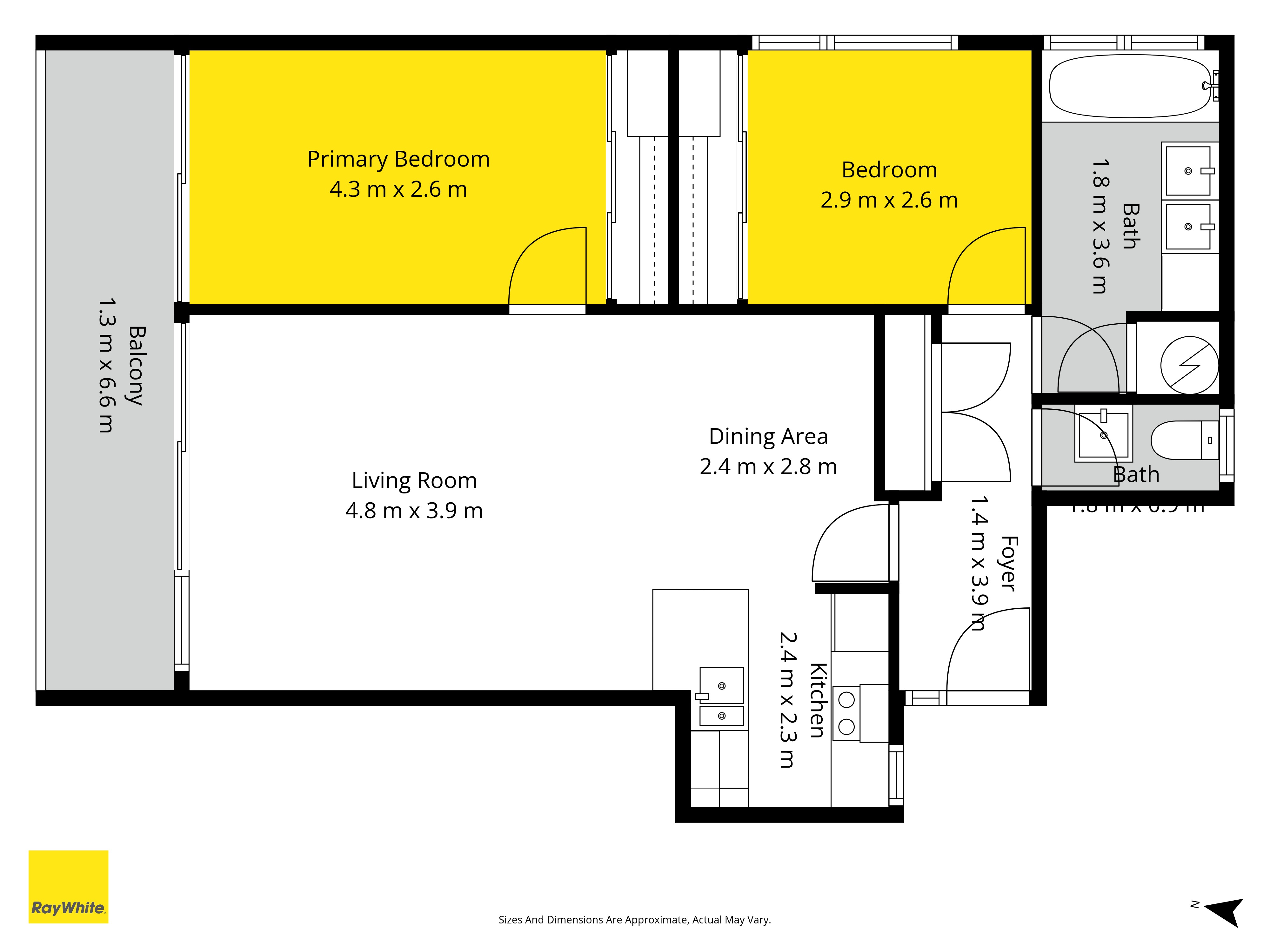
Set on the third floor of the landmark Northcrest building, this 81m² apartment puts the Waitemata on full display - from North Head across to Rangitoto and back to the city skyline. The aspect is north-facing, the elevation is just right, and the outlook does the heavy lifting. The position is proven - the potential is yours to realise, make this your bolt-hold by the sea.

Inside, it's clean, functional, and ready for you to simply enjoy or add your touches. Whether that's a light refresh or a sharper renovation, the fundamentals are solid - concrete construction, lift access, and a layout that is suited to professionals who want versatility, perhaps working from home.

Two genuine bedrooms with proper wardrobes are situated off the living zone. The kitchen, dining and lounge connect easily and open to a balcony that earns its keep every single day with that spectacular view. A full bathroom, separate toilet, double glazing, and a covered carport behind a secure gate round things out.

Location keeps life simple. Eastridge is down the road, beaches are within easy reach, and Orakei Train Station links you straight into the city.

Ease assured and incomparable views - this is an opportunity to move quickly. Early offers are encouraged.

View, assess, and move when you're ready - this one speaks for itself.

We are happy to collaborate with all agents and agencies. If you have a buyer please get in touch with Mike on - 021934240

Property Details

Suburb stats

Property ID ORK31952

Category
Apartment
Status
Current
Bedrooms
2
Bathrooms
1
Garaging
1

Floor Plan


Inspection times

18 Apr 11:00AM - 11:30AM

19 Apr 11:00AM - 11:30AM

25 Apr 11:00AM - 11:30AM

26 Apr 11:00AM - 11:30AM

02 May 11:00AM - 11:30AM

03 May 11:00AM - 11:30AM

09 May 11:00AM - 11:30AM

10 May 11:00AM - 11:30AM


Local Schools

* While every effort has been made to ensure the information displayed is accurate, please check details directly with the school before making decisions based on this information.

Primary
Intermediate
Secondary
Orakei School - 840m away
Years 1-8
Co-ed
Grace Street
09 521 0657


Orakei School - 840m away
Years 1-8
Co-ed
Grace Street
09 521 0657


Baradene College - 2.1km away
Year 7-15
Girls
237 Victoria Avenue
09 524 6019


Selwyn College - 1.3km away
Year 9-15
Co-ed
Kohimarama Road
09 521 9610


Baradene College - 2.1km away
Year 7-15
Girls
237 Victoria Avenue
09 524 6019



Show on map

Make an Appointment

Send an enquiry about this property to the agent


Mike Zelcer


Licensee Salesperson

Mobile: 021 934 240

Phone: (09) 520 6000


You May Also Like

Orakei, 62A Tautari Street

62A Tautari Street


5

4

2

Orakei, 34 Rukutai Street

34 Rukutai Street


3

2

3

Orakei, 45A Tautari Street

45A Tautari Street


4

2

4

Orakei, 116a Coates Avenue

116a Coates Avenue


4

3

2

Suburb Stats

Orakei


Median sale price in March 2026

$1,690,000

3% last month
27% same time as
last year

Monthly Trend

Total Sales in March 2026

120% last month
11 sales
83% same time as
last year

Monthly Sales